30A & 30B Lanyon, Mandurah Overview
Property Type: Two-storey building, 8 units
Address: 30A & 30B Lanyon St, Mandurah WA 6210
Land Area: 1121 m²
Living Area:
Number of Floors: 2 floors
Bedrooms:
Bathrooms:
Furnishing:
Price: Contact us for more information
Developer: Luxcom
  • Discover the comfort of coastal living with all the essentials right around the corner. Nestled in a quiet yet connected neighborhood, 30A & 30B Lanyon offers a family-friendly lifestyle with smart design and unbeatable convenience.
  • Just minutes from schools, parks, fitness centers, supermarkets, and even pet stores, this address is perfect for growing families, professionals, or anyone looking to enjoy the best of Mandurah.
  • It’s not just a home—it’s your ideal base for a well-rounded, modern life.

Location

30A & 30B Lanyon, Mandurah is part of a peaceful, leafy enclave that lives up to its name—with tree-lined streets, nearby parks, and a strong sense of community. Residents enjoy the calm of suburban life while being only minutes from the vibrant Mandurah foreshore and beaches, creating a lifestyle that blends relaxation with recreation.

Local Amenities

Documents

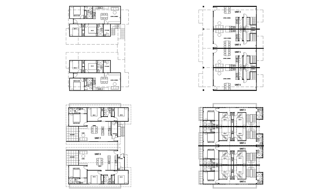
30A & 30B Lanyon Mandurah Site Plan
30A & 30B Lanyon Mandurah Site Plan
30A & 30B Lanyon Mandurah Site Plan
30A & 30B Lanyon Mandurah Site Plan

Frequently Asked Questions

Smart, modern & low-maintenance homes for young professionals, small families, and downsizers.

What is a Picap home?

A prefabricated home, or prefab home, is a house that is built in sections at a factory and then transported to the site for assembly. This process ensures faster construction, cost savings, and high-quality standards.

What is a Picap home?

A prefabricated home, or prefab home, is a house that is built in sections at a factory and then transported to the site for assembly. This process ensures faster construction, cost savings, and high-quality standards.

What is a Picap home?

A prefabricated home, or prefab home, is a house that is built in sections at a factory and then transported to the site for assembly. This process ensures faster construction, cost savings, and high-quality standards.

Get Consultation

Your Gateway to Australian Property Investment

    * is required information