1 Gilroy Street, Cloverdale Overview
Property Type: 1 single-storey detached dwelling
Address: 1 Gilroy Street, Cloverdale
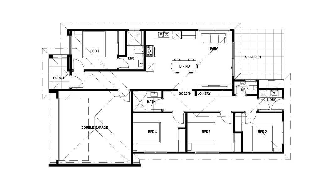
Land Area: 321m²/dwelling
Living Area: 119.40 m²/dwelling
Number of Floors: 1 floor
Bedrooms: 4 bedrooms/dwelling
Bathrooms: 2 bathrooms & 1 toilet per dwelling
Furnishing:
Price: Contact us for more information
Developer: Luxcom
  • Nestled in the heart of Cloverdale, this Harmony Homes home combines functional design with everyday comfort.
  • Featuring a contemporary façade and well-planned layout, the residence offers bright living spaces, private bedrooms, and an inviting outdoor area — perfect for families and young professionals alike.

Location

Just minutes from Belmont Forum Shopping Centre, local schools, and parks, 1 Gilroy Street delivers the convenience of urban living with the peace of a residential neighbourhood.

It’s a home designed for those who value simplicity, quality, and a balanced lifestyle.

Local Amenities

Documents

1 Gilroy Street, Cloverdale Documents
1 Gilroy Street, Cloverdale Documents

Frequently Asked Questions

Thoughtfully designed homes that bring comfort, practicality, and family value together.

What is a Picap home?

A prefabricated home, or prefab home, is a house that is built in sections at a factory and then transported to the site for assembly. This process ensures faster construction, cost savings, and high-quality standards.

What is a Picap home?

A prefabricated home, or prefab home, is a house that is built in sections at a factory and then transported to the site for assembly. This process ensures faster construction, cost savings, and high-quality standards.

Get Consultation

Your Gateway to Australian Property Investment

    * is required information