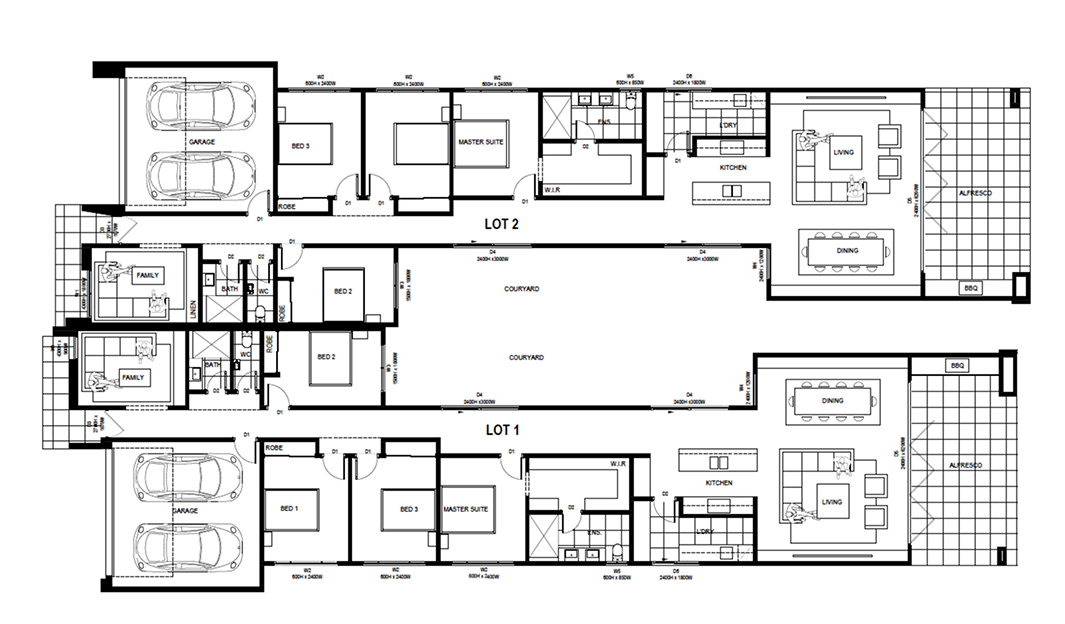
27 Maple Street, Lathlain Overview
Property Type: 2 single-storey detached dwelling (LOT 1 & 2)
Address: 27 Maple Street, Lathlain
Land Area: 255.85 m²/dwelling
Living Area: 184.79 m²/dwelling
Number of Floors: 1 floor
Bedrooms: 4 bedrooms/dwelling
Bathrooms: 2 bathrooms & 1 toilet per dwelling
Furnishing:
Price: Contact us for more information
Developer: Luxcom
  • Two premium single homes located at 27 Maple Street, Lathlain — a peaceful residential pocket with convenient access to central Perth and the scenic Swan River.
  • Each residence is thoughtfully designed with a private garage, spacious living areas, alfresco space, and landscaped outdoor zones, offering both privacy and openness.
  • With an overall floor area of approximately 255m² per home, the design reflects modern Australian living — elegant, functional, and filled with natural light.

Location

Situated in the well-connected suburb of Lathlain, Swanline Residences enjoys a quiet residential atmosphere just minutes from Perth’s dynamic city centre.

The address offers easy access to Victoria Park cafés and dining precinct, Crown Entertainment Complex, and Optus Stadium, while being only a short drive to the tranquil banks of the Swan River.

With nearby parks, schools, and transport links, this location perfectly balances convenience, lifestyle, and calm suburban living.

Local Amenities

Documents

27 Maple Street, Lathlain Documents
27 Maple Street, Lathlain Documents

Frequently Asked Questions

Thoughtfully designed homes that bring comfort, practicality, and family value together.

What is a Picap home?

A prefabricated home, or prefab home, is a house that is built in sections at a factory and then transported to the site for assembly. This process ensures faster construction, cost savings, and high-quality standards.

What is a Picap home?

A prefabricated home, or prefab home, is a house that is built in sections at a factory and then transported to the site for assembly. This process ensures faster construction, cost savings, and high-quality standards.

What is a Picap home?

A prefabricated home, or prefab home, is a house that is built in sections at a factory and then transported to the site for assembly. This process ensures faster construction, cost savings, and high-quality standards.

Get Consultation

Your Gateway to Australian Property Investment

    * is required information